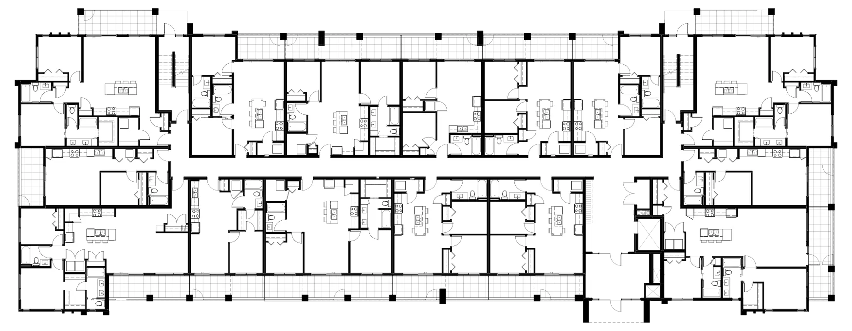
Availability
Available
Sold
Current Suite
Main Floor

Second Floor

Third Floor

Fourth Floor

Fifth Floor

Scott Farquhar

Meridian Seton Sales Centre
200 Seton Circle SECalgary, Alberta
Hours of Operation
Mon-Thur: 2pm to 8pm
Sat, Sun, and Holidays: 12pm to 5pm

